В избранное
Бакалаврская работа (БР) на 109 листов пояснительной записки и 5 чертежей выполнена в полном объёме и в соответствии с заданием. Тема БР является актуальной, нестандартной и соответствует профилю подготовки бакалавра теплоэнергетика. В работе рассмотрены разные способы утилизации отработанных деревянных шпал. Из них выбран способ термической утилизации с использованием газогенератора обращенного процесса газификации. Для предлагаемого газогенератора выполнена оценка расчетных характеристик получаемого генераторного газа и определены оптимальные размеры газогенератора. Также выбрано вспомогательное оборудование для обеспечения процесса газификации шпал. Разработана схема топливоподготовки.
Выполнен расчет и выбор: котельного оборудования, сетевых подогревателей, горелочного устройства, различных насосов. Подобрано оборудование для водоподготовки и обеспечения хранения резервного топлива. Произведена оценка объемов утилизируемых шпал для получения генераторного газа, количества производимой тепловой энергии и стоимости ее выработки.Уделено внимание обеспечению безопасности жизнедеятельности в котельной и экологичности предлагаемого способа утилизации отработанных деревянных шпал.
Представленные проектные решения по термической утилизации отработанных деревянных шпал соответствуют действующим нормам и правилам, учитывают передовые достижения науки и техники. Они могут быть рекомендованы как вариант утилизации отработанных шпал с получением тепловой энергии в качестве альтернативы платной передаче шпал сторонним организациям для дальнейшей утилизации.
Текстовая часть и графический материал оформлены качественно, с соблюдением требований государственных и образовательных стандартов, с использованием ЭВМ.
Содержание
Введение
1 Технико-экономическое обоснование проекта
1.1 Анализ деятельности котельной
1.2 Основное и вспомогательное оборудование котельной
1.3 Состояние сетей водоснабжения котельной
1.4 Обоснование модернизации котельной
1.5 Общая характеристика тепловой сети
1.6 Определение тепловой нагрузки
2 Проектирование газогенератора и выбор вспомогательного оборудования
2.1 Основные понятия газификации
2.2 Газогенератор обращенного типа
2.3 Протекающие в генераторе химические реакции
2.4 Определение элементарного состава древесины с креозотовой пропиткой
2.5 Определение состава и характеристик генераторного газа
2.6 Определение расхода топлива и расхода газа
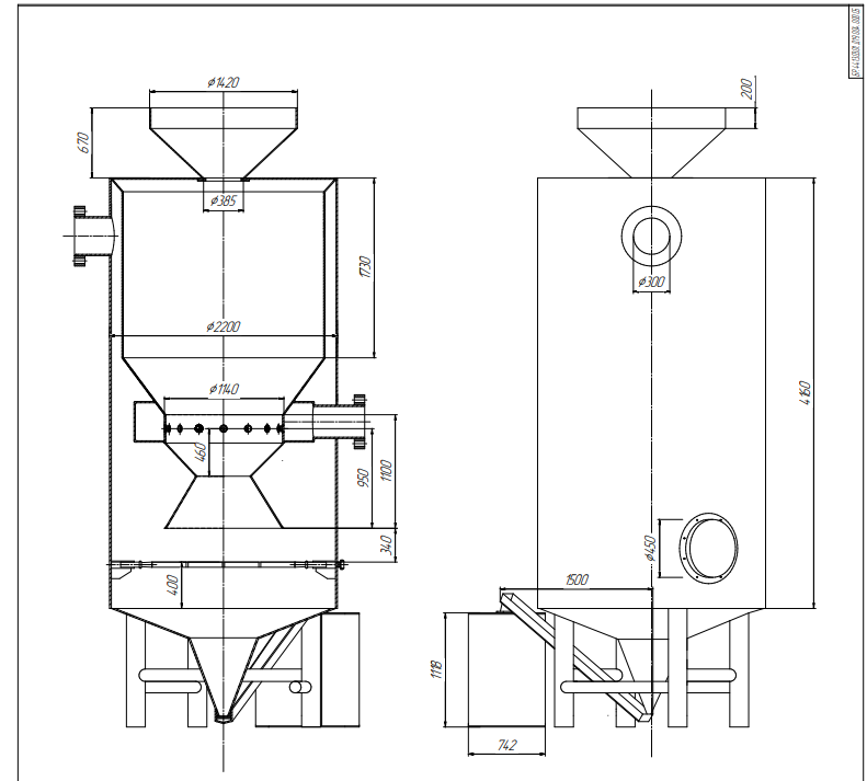
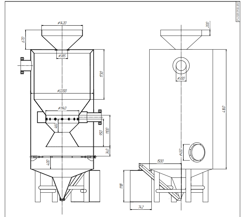
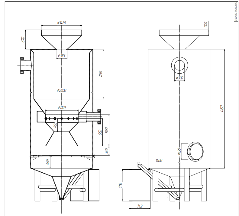
2.7 Определение конструктивных размеров газогенератора
2.8 Выбор вспомогательного оборудования
2.8.1 Выбор колосниковых решеток
2.8.2 Выбор шнекового транспортера
2.8.3 Выбор дутьевой установки
2.8.4 Выбор системы забора золы
2.8.5 Выбор зольного ящика
2.8.6 Выбор измельчителя древесных отходов
2.9 Модель спроектированного газогенератора обращенного типа
3 Тепломеханические расчеты и выбор котельного оборудования
3.1 Выбор котельного агрегата
3.1.1 Описание выбранного котельного агрегата
3.1.2 Устройство и работа котла
3.2 Расчет тепловой схемы котельной
3.3 Расчет и выбор подогревателей
3.4 Расчет и выбор горелочного устройства
3.5 Выбор устройства для подсвечивания факела
3.6 Расчет и выбор подпиточного насоса
3.7 Расчет и выбор насосов исходной воды
3.8 Расчет и выбор насосов сетевой воды
3.9 Дизельное хозяйство котельной
3.10 Выбор оборудования для водоподготовки
4 Экономическая оценка проекта
4.1 Расчет показателей экономической оценки проекта модернизации котельной
5 Обеспечение безопасности жизнедеятельности
5.1 Анализ опасных вредных производственных факторов при эксплуатации котельной
5.2 Правила безопасности при работе в котельной
5.3 Пожарная безопасность при эксплуатации котельной
5.4 Пожарная безопасность на предприятии
5.5 Пожарная безопасность при складировании и хранении шпал
5.6 Безопасность при обслуживании газового хозяйства
6 Экологическая оценка проекта
6.1 Нормативные документы по охране окружающей среды
6.2 Оценка воздействия энергетической отрасли на окружающую среду
6.3 Нормы транспортировки и хранения отработанных шпал
Заключение
Чертежи
Газогенератор (формат А0)
Компоновка оборудования (формат А1)
Генеральный план (формат А1)
Компоновка оборудования (формат А1)
Принципиальная тепловая схема (формат А1)
Спецификации
Спецификация к генеральному плану
Спецификация к компоновке
Спецификация к тепловой схеме
Проект модернизации котельной с использованием термической утилизации отработанных деревянных шпал. Дипломная работа. Образец электронного документа.
- 25200 руб.
Артикул:
CN1176
- Есть в наличии
Бакалаврская работа (БР) на 109 листов пояснительной записки и 5 чертежей выполнена в полном объёме и в соответствии с заданием. Тема БР является актуальной, нестандартной и соответствует профилю подготовки бакалавра теплоэнергетика. В работе рассмотрены разные способы утилизации отработанных деревянных шпал. Из них выбран способ термической утилизации с использованием газогенератора обращенного процесса газификации. Для предлагаемого газогенератора выполнена оценка расчетных характеристик получаемого генераторного газа и определены оптимальные размеры газогенератора. Также выбрано вспомогательное оборудование для обеспечения процесса газификации шпал. Разработана схема топливоподготовки.
Выполнен расчет и выбор: котельного оборудования, сетевых подогревателей, горелочного устройства, различных насосов. Подобрано оборудование для водоподготовки и обеспечения хранения резервного топлива. Произведена оценка объемов утилизируемых шпал для получения генераторного газа, количества производимой тепловой энергии и стоимости ее выработки.Уделено внимание обеспечению безопасности жизнедеятельности в котельной и экологичности предлагаемого способа утилизации отработанных деревянных шпал.
Представленные проектные решения по термической утилизации отработанных деревянных шпал соответствуют действующим нормам и правилам, учитывают передовые достижения науки и техники. Они могут быть рекомендованы как вариант утилизации отработанных шпал с получением тепловой энергии в качестве альтернативы платной передаче шпал сторонним организациям для дальнейшей утилизации.
Текстовая часть и графический материал оформлены качественно, с соблюдением требований государственных и образовательных стандартов, с использованием ЭВМ.
СодержаниеВведение
1 Технико-экономическое обоснование проекта
1.1 Анализ деятельности котельной
1.2 Основное и вспомогательное оборудование котельной
1.3 Состояние сетей водоснабжения котельной
1.4 Обоснование модернизации котельной
1.5 Общая характеристика тепловой сети
1.6 Определение тепловой нагрузки
2 Проектирование газогенератора и выбор вспомогательного оборудования
2.1 Основные понятия газификации
2.2 Газогенератор обращенного типа
2.3 Протекающие в генераторе химические реакции
2.4 Определение элементарного состава древесины с креозотовой пропиткой
2.5 Определение состава и характеристик генераторного газа
2.6 Определение расхода топлива и расхода газа
2.7 Определение конструктивных размеров газогенератора
2.8 Выбор вспомогательного оборудования
2.8.1 Выбор колосниковых решеток
2.8.2 Выбор шнекового транспортера
2.8.3 Выбор дутьевой установки
2.8.4 Выбор системы забора золы
2.8.5 Выбор зольного ящика
2.8.6 Выбор измельчителя древесных отходов
2.9 Модель спроектированного газогенератора обращенного типа
3 Тепломеханические расчеты и выбор котельного оборудования
3.1 Выбор котельного агрегата
3.1.1 Описание выбранного котельного агрегата
3.1.2 Устройство и работа котла
3.2 Расчет тепловой схемы котельной
3.3 Расчет и выбор подогревателей
3.4 Расчет и выбор горелочного устройства
3.5 Выбор устройства для подсвечивания факела
3.6 Расчет и выбор подпиточного насоса
3.7 Расчет и выбор насосов исходной воды
3.8 Расчет и выбор насосов сетевой воды
3.9 Дизельное хозяйство котельной
3.10 Выбор оборудования для водоподготовки
4 Экономическая оценка проекта
4.1 Расчет показателей экономической оценки проекта модернизации котельной
5 Обеспечение безопасности жизнедеятельности
5.1 Анализ опасных вредных производственных факторов при эксплуатации котельной
5.2 Правила безопасности при работе в котельной
5.3 Пожарная безопасность при эксплуатации котельной
5.4 Пожарная безопасность на предприятии
5.5 Пожарная безопасность при складировании и хранении шпал
5.6 Безопасность при обслуживании газового хозяйства
6 Экологическая оценка проекта
6.1 Нормативные документы по охране окружающей среды
6.2 Оценка воздействия энергетической отрасли на окружающую среду
6.3 Нормы транспортировки и хранения отработанных шпал
Заключение
Чертежи
Газогенератор (формат А0)
Компоновка оборудования (формат А1)
Генеральный план (формат А1)
Компоновка оборудования (формат А1)
Принципиальная тепловая схема (формат А1)
Спецификации
Спецификация к генеральному плану
Спецификация к компоновке
Спецификация к тепловой схеме
Отзывы покупателей