В избранное
Чертеж парового котла типа Т 35/40
- 200 руб.
Артикул:
CN1190
- Есть в наличии
Формат чертежа: А1
Программа Компас, формат cdw
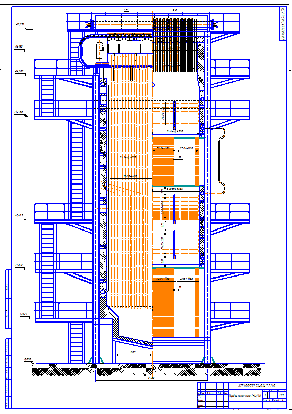
Котлоагрегат Т-35/40 изготовлен Белгородским заводом энергетического машиностроения в 1977 г. Представляет собой вертикальный однобарабанный агрегат П-образной компоновки с полностью экранированной топочной камерой. За фестоном, в поворотном газоходе, размещен горизонтальный, дренируемый пароперегреватель. Хвостовые поверхности нагрева - водяной экономайзер и воздухоподогреватель, выполнены в «рассечку» и распола-гаются в вертикальном опускном газоходе.
Паропроизводительность - 35 т/час. Давление в барабане - 3,7 МПа. Температура перегретого пара - 425 оС
Давление на выходе из пароперегревателя - 3,5 МПа. Температура питательной воды до экономайзера - 102 оС.
Топочная камера объемом 179 м3, в ней установлены две спаренные щелевые газовые горелки по фронту котла в один ряд. Стены топочной камера покрыты экранами, выполненными из труб Ø 60х3 мм (Ст.20) с шагом 80 мм, на стыках блоков боковых стен шаг 110 мм. Для обеспечения тепловых удлинений экран имеет подвижные крепления, дающие возможность вертикальных перемещений. Коллекторы экранов соответственно имеют крепления, обеспечиваю-щие возможность их удлинений. Опускная система экрана проходит в обмуровке и выполнена из труб Ø102x3,5 мм (Ст.20). Фронтовой и задний экраны в нижней части образуют скаты «холод-ной воронки». Экраны топки разделены на 8 самостоятельных циркуляционных контуров.
Программа Компас, формат cdw
Котлоагрегат Т-35/40 изготовлен Белгородским заводом энергетического машиностроения в 1977 г. Представляет собой вертикальный однобарабанный агрегат П-образной компоновки с полностью экранированной топочной камерой. За фестоном, в поворотном газоходе, размещен горизонтальный, дренируемый пароперегреватель. Хвостовые поверхности нагрева - водяной экономайзер и воздухоподогреватель, выполнены в «рассечку» и распола-гаются в вертикальном опускном газоходе.
Паропроизводительность - 35 т/час. Давление в барабане - 3,7 МПа. Температура перегретого пара - 425 оС
Давление на выходе из пароперегревателя - 3,5 МПа. Температура питательной воды до экономайзера - 102 оС.
Топочная камера объемом 179 м3, в ней установлены две спаренные щелевые газовые горелки по фронту котла в один ряд. Стены топочной камера покрыты экранами, выполненными из труб Ø 60х3 мм (Ст.20) с шагом 80 мм, на стыках блоков боковых стен шаг 110 мм. Для обеспечения тепловых удлинений экран имеет подвижные крепления, дающие возможность вертикальных перемещений. Коллекторы экранов соответственно имеют крепления, обеспечиваю-щие возможность их удлинений. Опускная система экрана проходит в обмуровке и выполнена из труб Ø102x3,5 мм (Ст.20). Фронтовой и задний экраны в нижней части образуют скаты «холод-ной воронки». Экраны топки разделены на 8 самостоятельных циркуляционных контуров.
Отзывы покупателей